info@betz-interiors.de
TEL: +49 (0) 17620911803
Mo - Fr 10-18 Uhr
Karl-Liebknechtstraße 88, 04275 Leipzig
Gastronomie Pizzeria Umbau Innenarchitektur Leipzig
Gastronomie Pizzeria Lichtplanung Innenarchitektur Leipzig
Gastronomie Pizzeria Innenausbau Innenarchitektur Leipzig
Gastronomie Pizzeria Inneneinrichtung Innenarchitektur Leipzig
Gastronomie Pizzeria Inneneinrichtung Innenarchitektur Leipzig
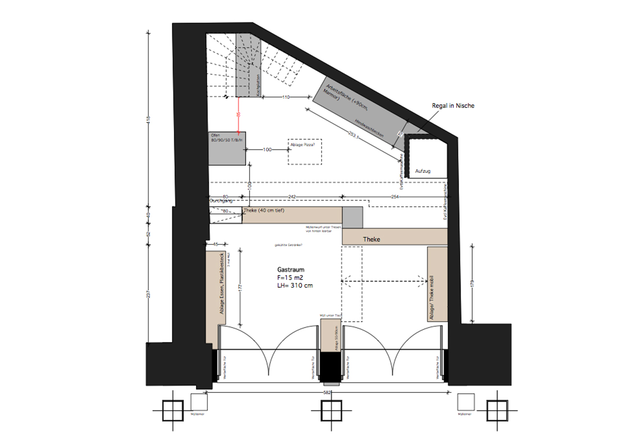
Gastronomie Pizzeria Grundriss zeichnen Innenarchitektur Leipzig
Gastronomie Pizzeria Grundriss zeichnen Innenarchitektur Leipzig
Gastronomie Pizzeria Grundriss zeichnen Innenarchitektur Leipzig
Gastronomie Pizzeria Aussenbereich Umbau Innenarchitektur Leipzig

Pizzeria Umbau

Innenausbau: Umbau einer Pizzeria in der Leipziger Innenstadt. Der sehr kleine Laden benötigte lediglich einen neuen Verkaufsraum, ein modernes Lichtkonzept, eine angemessene Präsentation der Ware und eine ausgewogen Matarial- und Texturauswahl.

Das Raumkonzept für den Pizzaschnellimbiss ordnet sich der Firmenidentität unter. Warme Farben, Licht und Materialien geben den Sonnenstrahlen aus Italien freien Lauf.

Klient:

Privater Bauherr

Jahr

2020

Ort:

Leipzig

Category:

2019, Leipzig, privat

Tags:

Entwurf, Planung, privat